施設・設備
FACILITIES
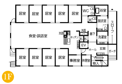
グループホーム南あいの里館は、高齢者の方に配慮したバリアフリー設計です。
居室、浴室、共用トイレには「ナースコール」を完備しており、ご入居者様に安心と快適な生活をご提供いたします。
共用スペース(1F)
キッチン 安全なIHヒーター |
食堂・ お食事と |
浴室 浴室内手すり完備・リフト付きシャワーキャリーあり |
洗濯室 ランドリー |
トイレ 洋式トイレ |
事務室 スタッフ常駐 |
休憩室
|
共用スペース(2F)
キッチン 安全なIHヒーター |
食堂・ お食事と |
浴室 浴室内手すり完備 |
洗濯室 ランドリー |
トイレ 洋式トイレ |
事務室 スタッフ常駐 |
面談室 |

